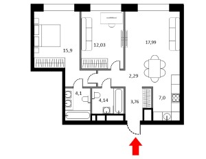
2-комн. квартира, 83.6 м2, 4 этаж

ПОЛНАЯ ЦЕНА В ДОГОВОРЕ!

На продажу предлагается квартира общей площадью 83,6 м² Выполнен евроремонт.

Планировочное решение: просторная кухня-гостиная с выделенной кабинетной зоной, гостевой санузел, спальня, большой санузел с сауной и купелью, просторный балкон (24м).

В квартире 4 окна от пола до потолка с выходом на террасу. Вид в большой зеленый двор.

Технические характеристики дома
Оснащение ЖК Ля Де Фанс в полной мере соответствует высоким требованиям, предъявляемым к недвижимости элитного класса:
• автономная система теплообеспечения от индивидуального теплового пункта;
• 8 скоростных лифтов, также соединенных с подземным паркингом;
• двойные окна с деревянными рамами;
• входные двери из металла, отделанные натуральным деревом;
• центральная система кондиционирования воздуха;
• приточно-вытяжная вентиляция;
• оптоволоконный кабель с выделенной линией подключения к Сети Интернет и 14 каналов эфирного ТВ, спутниковое ТВ.

Система безопасности
В ЖК Ля Де Фанс все продумано, чтобы гарантировать спокойствие жильцов. Доступ на территорию выполняется через контрольно-пропускной пункт. Постоянно ведется видеонаблюдение. Участок вместе с новостройкой отгорожен, что защищает его от проникновения посторонних.

Паркинг
В подземной части жилого комплекса Ля Де Фанс размещается двухуровневый паркинг, рассчитанный на 317 машиномест. К услугам гостей предоставляется наземная парковка возле новостройки. Попасть в подземный гараж можно лишь при наличии электронных ключей.

Есть машино-место в подземном паркинге.
Лот №348003
2-комн. квартира, 83.6 м2, 4 этаж
ЖК: Ля Де Фанс
Адрес: 3-я Фрунзенская улица, 19
Описание объекта
Площадь
83.6 м²
Этаж/этажность
4 / 9
Комнат
2
Санузлов
2
Отделка
евроремонт
Дополнительно
Правоустанавливающие документы: Собственность.

Обновлен: 19.08.2022
Получить презентацию

Стоимость объекта 57 500 000 ₽

Стоимость за м2 687 799 ₽

Все предложения ЖК
Расположение квартиры

Адрес: 3-я Фрунзенская улица, 19
Метро:
Фрунзенская
10 мин. пешком (Рядом: Спортивная)

Заинтересовал объект но остались вопросы? Заполните форму и наш специалист с вами свяжется.

Коттедж Коттедж 3 Коттедж 2
Похожие квартиры
Ля Де Фанс
№ лота 348007
52 000 000 ₽
702 703 ₽/м2
74 м2
2-комн. квартира, 74 м2, 4 этаж
3-я Фрунзенская улица, 19
Фрунзенская10 мин.

2-комн.

4 / 9

Подробнее
Остров
№ лота 500003
48 500 000 ₽
757 813 ₽/м2
64 м2
3-комн. квартира, 64 м2, 5 этаж
Нижние Мнёвники улица, 9

3-комн.

5 / 23

Подробнее
Level Академическая
№ лота
44 585 289 ₽
667 444 ₽/м2
66.8 м2
3-комн. квартира, 66.8 м2, 13 этаж
Профсоюзная улица, 2
Академическая2 мин.

3-комн.

13 / 19

3 м.

Подробнее
Пресня Сити
№ лота 329346
55 000 000 ₽
802 920 ₽/м2
68.5 м2
2-комн. квартира, 68.5 м2, 27 этаж
Ходынская улица, 2
Улица 1905 года13 мин.

2-комн.

27 / 44

3 м.

Подробнее
Пресня Сити
№ лота 329340
44 800 000 ₽
652 111 ₽/м2
68.7 м2
3-комн. квартира, 68.7 м2, 4 этаж
Ходынская улица, 2, кВ
Улица 1905 года13 мин.

3-комн.

4 / 44

3 м.

Подробнее
Пресня Сити
№ лота 329172
46 900 000 ₽
682 678 ₽/м2
68.7 м2
3-комн. квартира, 68.7 м2, 10 этаж
Ходынская улица, 2, кВ
Улица 1905 года13 мин.

3-комн.

10 / 44

3 м.

Подробнее
Пресня Сити
№ лота 329352
50 000 000 ₽
726 744 ₽/м2
68.8 м2
2-комн. квартира, 68.8 м2, 37 этаж
Ходынская улица, 2, кА
Улица 1905 года13 мин.

2-комн.

37 / 44

3 м.

Подробнее
Пресня Сити
№ лота 329157
48 500 000 ₽
704 942 ₽/м2
68.8 м2
2-комн. квартира, 68.8 м2, 14 этаж
Ходынская улица, 2
Улица 1905 года13 мин.

2-комн.

14 / 44

3 м.

Подробнее
Пресня Сити
№ лота 329341
53 000 000 ₽
770 349 ₽/м2
68.8 м2
2-комн. квартира, 68.8 м2, 36 этаж
Ходынская улица, 2, кВ
Улица 1905 года13 мин.

2-комн.

36 / 44

3 м.

Подробнее