3-комн. квартира, 122.6 м2, 20 этаж

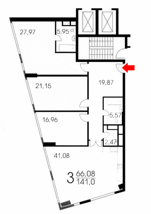
На продажу предлагается квартира общей площадью 122,6 м² Планировка свободная. Стены не возведены.

Планировочное решение: кухня – столовая – гостиная, две спальные комнаты, три санузла, холл.

Жилой комплекс Sky House – это стиль современного и высокотехнологичного города, стиль хай-тек, в котором ярко прослеживаются ритмы геометрических форм. В отделке фасадов зданий комплекса будут использованы зеркальные панели, в которых днем отражается небо, а ночью – огни большого города, таким образом оправдывая свое название. Благодаря такой зеркальной отделке, несмотря на свою высотность в низкозастроенном центре города, башни ЖК Скай Хаус практически растворяются в пространстве и не нарушают городской ландшафт.
Просторные входные группы каждой их башен ЖК Sky House также будут выдержаны в стиле хай-тек. Отделка общих помещений и лестничных маршей башен будет выполнена в лаконичном стиле, при этом будут использоваться только самые высококачественные материалы.
Лот №250070
3-комн. квартира, 122.6 м2, 20 этаж
ЖК: Sky House
Адрес: Мытная улица, 40к2, корпус 2
Описание объекта
Площадь
122.6 м²
Этаж/этажность
20 / 29
Комнат
3
Санузлов
2
Отделка
без отделки
Дополнительно


Обновлен: 06.10.2022
Получить презентацию

Стоимость объекта 54 237 500 ₽

Стоимость за м2 442 394 ₽

Все предложения ЖК
Расположение квартиры

Адрес: Мытная улица, 40к2, корпус 2
Метро:
Шаболовская
7 мин. пешком (Рядом: Октябрьская, Серпуховская)

Заинтересовал объект но остались вопросы? Заполните форму и наш специалист с вами свяжется.

Коттедж Коттедж 3 Коттедж 2
Похожие квартиры
Sky House
№ лота 250073
50 800 300 ₽
522 100 ₽/м2
97.3 м2
3-комн. квартира, 97.3 м2, 21 этаж
Мытная улица, 40к1, корпус 1
Шаболовская7 мин.

3-комн.

21 / 29

Подробнее
Sky House
№ лота 250068
45 474 300 ₽
406 383 ₽/м2
111.9 м2
3-комн. квартира, 111.9 м2, 21 этаж
Мытная улица, 40к2, корпус 2
Шаболовская7 мин.

3-комн.

21 / 29

Подробнее
Sky House
№ лота 250069
52 001 600 ₽
434 070 ₽/м2
119.8 м2
3-комн. квартира, 119.8 м2, 15 этаж
Мытная улица, 40к2, корпус 2
Шаболовская7 мин.

3-комн.

15 / 29

Подробнее
Sky House
№ лота 250074
45 066 400 ₽
364 320 ₽/м2
123.7 м2
3-комн. квартира, 123.7 м2, 2 этаж
Мытная улица, 40к1, корпус 1
Шаболовская7 мин.

3-комн.

2 / 29

Подробнее
Sky House
№ лота 250152
66 500 000 ₽
509 969 ₽/м2
130.4 м2
3-комн. квартира, 130.4 м2, 5 этаж
Мытная улица, 40
Шаболовская7 мин.

3-комн.

5 / 29

3 м.

Подробнее
Sky House
№ лота 250072
54 869 900 ₽
418 950 ₽/м2
130.97 м2
3-комн. квартира, 130.97 м2, 20 этаж
Мытная улица, 40к2, корпус 2
Шаболовская7 мин.

3-комн.

20 / 29

Подробнее
Sky House
№ лота 250175
66 200 000 ₽
503 422 ₽/м2
131.5 м2
3-комн. квартира, 131.5 м2, 19 этаж
Мытная улица, 40
Шаболовская7 мин.

3-комн.

19 / 29

3 м.

Подробнее
Sky House
№ лота 250060
60 729 200 ₽
460 000 ₽/м2
132.02 м2
3-комн. квартира, 132.02 м2, 19 этаж
Мытная улица, 40к1, корпус 1
Шаболовская7 мин.

3-комн.

19 / 29

Подробнее
Sky House
№ лота 250032
54 937 800 ₽
414 031 ₽/м2
132.69 м2
3-комн. квартира, 132.69 м2, 12 этаж
Мытная улица, 40к1, корпус 1
Шаболовская7 мин.

3-комн.

12 / 29

Подробнее
Sky House
№ лота 250018
54 170 700 ₽
408 250 ₽/м2
132.69 м2
3-комн. квартира, 132.69 м2, 9 этаж
Мытная улица, 40к1, корпус 1
Шаболовская7 мин.

3-комн.

9 / 29

Подробнее
Sky House
№ лота 250020
54 174 800 ₽
408 281 ₽/м2
132.69 м2
3-комн. квартира, 132.69 м2, 11 этаж
Мытная улица, 40к1, корпус 1
Шаболовская7 мин.

3-комн.

11 / 29

Подробнее
Sky House
№ лота 250035
56 551 200 ₽
402 643 ₽/м2
140.45 м2
4-комн. квартира, 140.45 м2, 14 этаж
Мытная улица, 40к1, корпус 1
Шаболовская7 мин.

4-комн.

14 / 29

Подробнее
Sky House
№ лота 250052
58 167 000 ₽
414 147 ₽/м2
140.45 м2
4-комн. квартира, 140.45 м2, 16 этаж
Мытная улица, 40к1, корпус 1
Шаболовская7 мин.

4-комн.

16 / 29

Подробнее
Sky House
№ лота 250054
59 782 800 ₽
425 652 ₽/м2
140.45 м2
4-комн. квартира, 140.45 м2, 17 этаж
Мытная улица, 40к1, корпус 1
Шаболовская7 мин.

4-комн.

17 / 29

Подробнее
Sky House
№ лота 250134
66 990 000 ₽
476 797 ₽/м2
140.5 м2
4-комн. квартира, 140.5 м2, 8 этаж
Мытная улица, 40к3, корпус 3
Шаболовская7 мин.

4-комн.

8 / 29

3 м.

Подробнее
Sky House
№ лота 250160
68 624 000 ₽
488 427 ₽/м2
140.5 м2
4-комн. квартира, 140.5 м2, 13 этаж
Мытная улица, 40к4, корпус 4
Шаболовская7 мин.

4-комн.

13 / 29

3 м.

Подробнее
Sky House
№ лота 250189
61 800 000 ₽
439 858 ₽/м2
140.5 м2
4-комн. квартира, 140.5 м2, 5 этаж
Мытная улица, 40к1, корпус 1
Шаболовская7 мин.

4-комн.

5 / 29

3 м.

Подробнее
Sky House
№ лота 250062
54 243 000 ₽
378 000 ₽/м2
143.5 м2
4-комн. квартира, 143.5 м2, 17 этаж
Мытная улица, 40к3, корпус 3
Шаболовская7 мин.

4-комн.

17 / 29

Подробнее
Sky House
№ лота 250029
53 812 500 ₽
374 478 ₽/м2
143.7 м2
4-комн. квартира, 143.7 м2, 4 этаж
Мытная улица, 40к3, корпус 3
Шаболовская7 мин.

4-комн.

4 / 29

Подробнее
Sky House
№ лота 250151
60 200 000 ₽
418 928 ₽/м2
143.7 м2
4-комн. квартира, 143.7 м2, 6 этаж
Мытная улица, 40
Шаболовская7 мин.

4-комн.

6 / 29

3 м.

Подробнее
Sky House
№ лота 250064
55 188 000 ₽
383 250 ₽/м2
144 м2
4-комн. квартира, 144 м2, 18 этаж
Мытная улица, 40к3, корпус 3
Шаболовская7 мин.

4-комн.

18 / 29

Подробнее
Sky House
№ лота 250100
57 840 000 ₽
400 000 ₽/м2
144.6 м2
4-комн. квартира, 144.6 м2, 3 этаж
Мытная улица, 40
Шаболовская7 мин.

4-комн.

3 / 29

3 м.

Подробнее
Sky House
№ лота 250048
53 361 000 ₽
367 500 ₽/м2
145.2 м2
4-комн. квартира, 145.2 м2, 14 этаж
Мытная улица, 40к3, корпус 3
Шаболовская7 мин.

4-комн.

14 / 29

Подробнее
Sky House
№ лота 250026
48 520 400 ₽
334 163 ₽/м2
145.2 м2
4-комн. квартира, 145.2 м2, 3 этаж
Мытная улица, 40к3, корпус 3
Шаболовская7 мин.

4-комн.

3 / 29

Подробнее
ЖК рядом
Жизнь на Плющихе
Английский квартал
Литератор
Wine House
I'M
Barkli Residence
Садовые кварталы
Barkli Gallery
Андреевский
Фьюжн парк