6-комн. квартира, 149.9 м2, 18 этаж

ОПИСАНИЕ КВАРТИРЫ - 18 ЭТАЖ, 149.9 КВ.М.

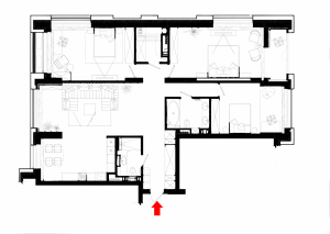
Свободная планировка. Стены в квартире не возведены.

Возможный вариант планировки: кухня с обеденной зоной, гостиная, три мастер-спальни со своим санузлом и гардеробной комнатой каждая, изолированная спальня, гостевой санузел, постирочная, гардеробная комната, холл.

В квартире восемь окон. Четыре из них с лоджиями.

Вид в сторону Москва Сити, Экспоцентра и 3 корпус

Высота потолков - 3.20 м

 

УСЛОВИЯ ПРОДАЖИ 

- быстрый выход на сделку; 

- свободная продажа; 

- возможна ипотека.

 

О КОМПЛЕКСЕ 

ЖК Сити-парк, находящийся в Пресненском районе, причислен к Центральному автономному округу Москвы. В непосредственной близости от здания располагается Москва-Сити – деловой центр столицы. Также недалеко от дома находятся парк Красная Пресня и Пресненские пруды – отличное место для неспешных прогулок. Наличие большого числа зеленых зон создает благоприятную экологическую обстановку в обозначенном районе. При этом транспортные магистрали расположены достаточно близко, но не доставляют беспокойства обитателям ЖК Сити Парк.

Лот №332486
6-комн. квартира, 149.9 м2, 18 этаж
ЖК: City Park
Адрес: Мантулинская улица, 9
Описание объекта
Площадь
149.9 м²
Этаж/этажность
18 / 20
Комнат
6
Санузлов
4
Отделка
без отделки
Высота потолка
3.2
Дополнительно


Обновлен: 17.10.2024
Получить презентацию

Стоимость объекта 280 000 000 ₽

Стоимость за м2 1 867 912 ₽

Все предложения ЖК
Расположение квартиры

Адрес: Мантулинская улица, 9
Метро:
Выставочная
12 мин. пешком (Рядом: Москва-Сити, Международная)

Заинтересовал объект но остались вопросы? Заполните форму и наш специалист с вами свяжется.

Коттедж Коттедж 3 Коттедж 2
Похожие квартиры
City Park
№ лота 332456
200 000 000 ₽
1 226 994 ₽/м2
163 м2
6-комн. квартира, 163 м2, 11 этаж
Мантулинская улица, 9
Выставочная12 мин.

6-комн.

11 / 20

3.2 м.

Подробнее
Звонарский DELUXE
№ лота 482006
310 000 000 ₽
2 500 000 ₽/м2
124 м2
3-комн. квартира, 124 м2, 7 этаж
Звонарский перулок, 3/4c1
Трубная5 мин.

3-комн.

7 / 10

Подробнее
РЕКА
№ лота 440006
190 000 000 ₽
1 511 535 ₽/м2
125.7 м2
3-комн. квартира, 125.7 м2, 4 этаж
Сергея Бондарчука улица, 6, 1

3-комн.

4 / 12

3.45 м.

Подробнее
Булгаков
№ лота 456005
200 000 000 ₽
1 344 086 ₽/м2
148.8 м2
2-комн. квартира, 148.8 м2, 4 этаж
Большой Козихинский переулок, 25
Пушкинская9 мин.

2-комн.

4 / 8

Подробнее
Хилков, 5
№ лота 441006
289 000 000 ₽
1 822 194 ₽/м2
158.6 м2
2-комн. квартира, 158.6 м2, 3 этаж
Хилков переулок, 5
Парк культуры6 мин.

2-комн.

3 / 5

Подробнее
Золотой
№ лота 777077
257 000 000 ₽
1 572 827 ₽/м2
163.4 м2
3-комн. квартира, 163.4 м2, 3 этаж
Софийская набережная, 18
Боровицкая12 мин.

3-комн.

3 / 5

3.35 м.

Подробнее
Fantastic House
№ лота 403029
190 000 000 ₽
1 119 623 ₽/м2
169.7 м2
4-комн. квартира, 169.7 м2, 3 этаж
Большой Тишинский переулок, 30/44с1

4-комн.

3 / 5

Подробнее
Звонарский DELUXE
№ лота 482009
360 000 000 ₽
2 111 437 ₽/м2
170.5 м2
4-комн. квартира, 170.5 м2, 6 этаж
Звонарский перулок, 3/4c1
Трубная5 мин.

4-комн.

6 / 10

Подробнее
Шоколад
№ лота 487001
199 000 000 ₽
1 156 304 ₽/м2
172.1 м2
4-комн. квартира, 172.1 м2, 4 этаж
Тетеринский переулок, 18, 2

4-комн.

4 / 8

3.3 м.

Подробнее
Остоженка 11
№ лота 449011
202 720 032 ₽
1 177 920 ₽/м2
172.1 м2
3-комн. квартира, 172.1 м2, 4 этаж
Остоженка ул., 11
Кропоткинская8 мин.

3-комн.

4 / 6

Подробнее
Пресня Сити
№ лота 329331
195 000 000 ₽
1 076 753 ₽/м2
181.1 м2
7-комн. квартира, 181.1 м2, 36 этаж
Ходынская улица, 2
Улица 1905 года13 мин.

7-комн.

36 / 44

3 м.

Подробнее
RedSide До объекта ~0.8 км.
№ лота 285362
220 000 000 ₽
1 471 572 ₽/м2
149.5 м2
4-комн. квартира, 149.5 м2, 7 этаж
Сергея Макеева улица, 9, корпус 4
Улица 1905 года9 мин.

4-комн.

7 / 17

3 м.

Подробнее
Lucky До объекта ~1.1 км.
№ лота 407427
227 000 000 ₽
1 939 839 ₽/м2
117.02 м2
2-комн. квартира, 117.02 м2, 16 этаж
Костикова улица, 4к2, 5
Улица 1905 года7 мин.

2-комн.

16 / 21

3.05 м.

Подробнее
Lucky До объекта ~1.1 км.
№ лота 407458
223 000 000 ₽
1 363 081 ₽/м2
163.6 м2
4-комн. квартира, 163.6 м2, 15 этаж
Костикова улица, 4
Улица 1905 года7 мин.

4-комн.

15 / 21

Подробнее
Lucky До объекта ~1.1 км.
№ лота 407476
210 000 000 ₽
1 277 139 ₽/м2
164.43 м2
3-комн. квартира, 164.43 м2, 11 этаж
Костикова улица, 4
Улица 1905 года7 мин.

3-комн.

11 / 21

Подробнее
Lucky До объекта ~1.1 км.
№ лота 407382
250 000 000 ₽
1 453 319 ₽/м2
172.02 м2
4-комн. квартира, 172.02 м2, 11 этаж
Костикова улица, 4к4, 1
Улица 1905 года7 мин.

4-комн.

11 / 21

Подробнее
SkyView До объекта ~2 км.
№ лота 444074
187 500 000 ₽
1 495 215 ₽/м2
125.4 м2
3-комн. квартира, 125.4 м2, 15 этаж
Дружинниковская улица, 15
Краснопресненская2 мин.

3-комн.

15 / 20

Подробнее
SkyView До объекта ~2 км.
№ лота 444067
185 250 000 ₽
1 300 000 ₽/м2
142.5 м2
4-комн. квартира, 142.5 м2, 11 этаж
Дружинниковская улица, 15
Краснопресненская2 мин.

4-комн.

11 / 20

Подробнее
SkyView До объекта ~2 км.
№ лота 444014
310 000 000 ₽
1 786 744 ₽/м2
173.5 м2
5-комн. квартира, 173.5 м2, 13 этаж
Дружинниковская улица, 15
Краснопресненская2 мин.

5-комн.

13 / 20

Подробнее
SkyView До объекта ~2 км.
№ лота 444050
250 000 000 ₽
1 440 092 ₽/м2
173.6 м2
4-комн. квартира, 173.6 м2, 12 этаж
Дружинниковская улица, 15
Краснопресненская2 мин.

4-комн.

12 / 20

Подробнее
SkyView До объекта ~2 км.
№ лота 444025
190 000 000 ₽
1 057 318 ₽/м2
179.7 м2
4-комн. квартира, 179.7 м2, 13 этаж
Дружинниковская улица, 15
Краснопресненская2 мин.

4-комн.

13 / 20

3.3 м.

Подробнее
SkyView До объекта ~2 км.
№ лота 444051
229 000 000 ₽
1 271 516 ₽/м2
180.1 м2
4-комн. квартира, 180.1 м2, 13 этаж
Дружинниковская улица, 15
Краснопресненская2 мин.

4-комн.

13 / 20

Подробнее
ЖК рядом
Золотые Ключи-2
Жизнь на Плющихе
Дом на Мосфильмовской
Воробьевы горы
Knightsbridge Private Park
Литератор
Садовые кварталы
Снегири Эко
Андреевский
Фьюжн парк