1-комн. квартира, 48.8 м2, 1 этаж

ОПИСАНИЕ КВАРТИРЫ - 1 ЭТАЖ, 48.8 КВ.М.

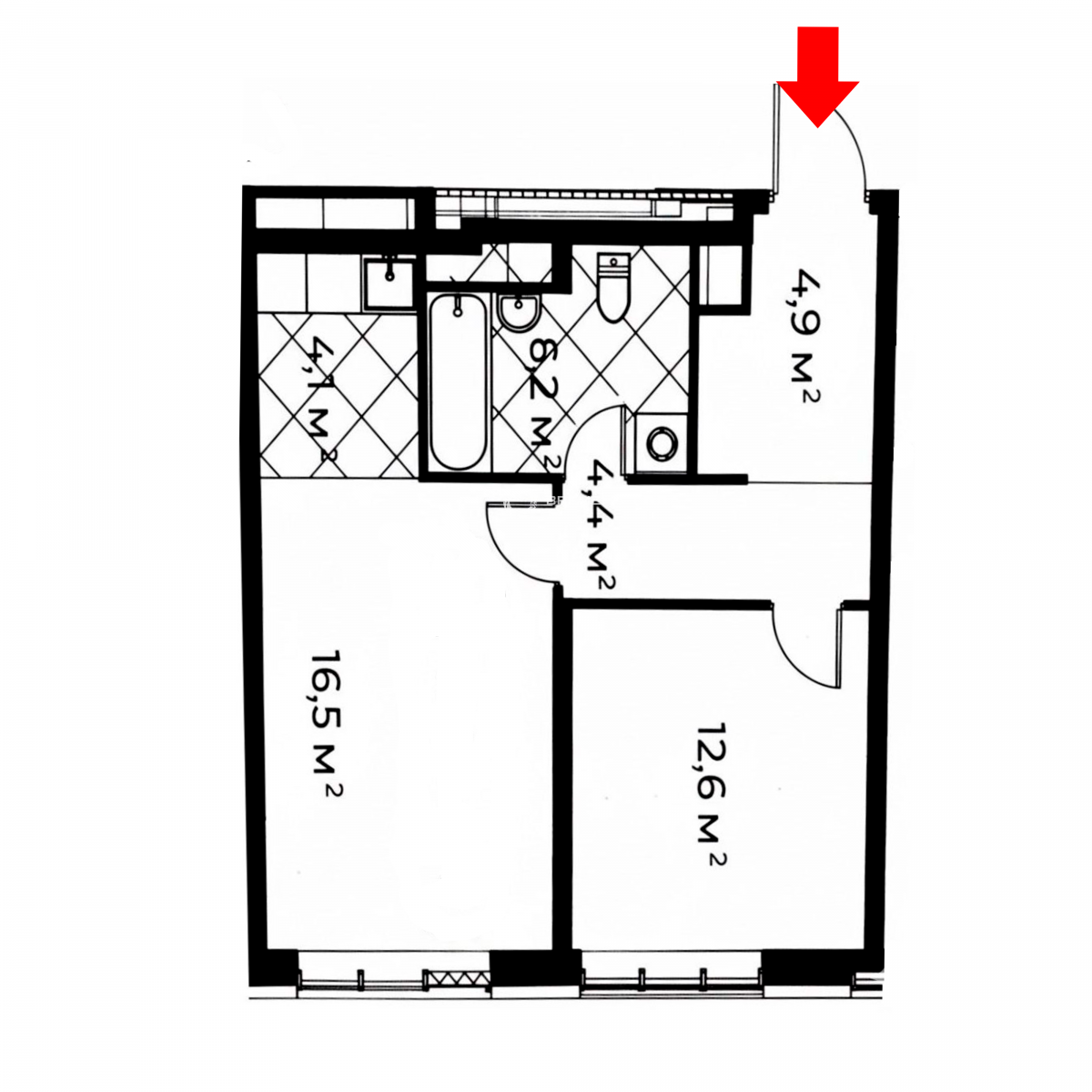
Свободная планировка. Стены не возведены. 

Возможный вариант планировки: студия или кухня-столовая, изолированная комната, санузел, прихожая

Высота потолков - 3, 65 м.

В квартире два больших панорамных окна. 

Вид в сторону реки Раменка

 

УСЛОВИЯ ПРОДАЖИ

- быстрый выход на сделку;

- свободная продажа;

- возможна ипотека

 

О КОМПЛЕКСЕ

West Garden — собрание клубных домов в своём парке площадью 16 гектаров.

Клубные дома West Garden расположены на западе Москвы, близко к центру, в престижном районе Минской улицы. Это статусная локация в окружении только новых премиальных домов.

West Garden находится в собственном просторном ландшафтном парке площадью 16 гектаров на берегу реки Раменки. Огороженная территория занимает 8 гектаров и доступна только для жителей.

Клубные дома расположены на комфортном расстоянии друг от друга. Это просторный квартал с невысокими для Москвы зданиями — до 15 этажей.

В West Garden насыщенная инфраструктура только для жителей. Предусмотрены пространства для здорового образа жизни по стандарту Fit Lab: на свежем воздухе универсальная многофункциональная спортивная площадка, воркаут-зона, беговой маршрут длиной 3 км, теннисные столы и место для занятий йогой; есть бесплатный фитнес с зонами силовых тренажёров, групповых и индивидуальных занятий, кардио, свободных весов, функционального тренинга. Для маленьких жителей предусмотрено более 10 детских площадок по стандарту Kid's Lab. В West Garden создан Clubhouse, в котором расположены клубная гостиная по стандарту Friend’s Lab для знакомства, общения и отдыха жителей дома и детская игровая комната площадью 300 кв. м по стандарту Kid's Lab.

О жителях и доме заботится Служба комфорта Smineх, которая предлагает сервис уровня 5-звёздочных отелей и сохраняет изначальный облик и концепцию дома.

Девелопер проекта — Sminex, который создаёт самую комфортную и престижную среду для жизни и работы.

 

Лот №420053
1-комн. квартира, 48.8 м2, 1 этаж
ЖК: Собрание клубных домов West Garden
Адрес: Генерала Дорохова пр-кт, 39к1Д, 5
Описание объекта
Площадь
48.8 м²
Этаж/этажность
1 / 12
Комнат
1
Санузлов
1
Отделка
без отделки
Высота потолка
3.65
Дополнительно


Обновлен: 10.10.2025
Получить презентацию

Стоимость объекта 47 000 000 ₽

Стоимость за м2 963 115 ₽

Все предложения ЖК
Расположение квартиры

Адрес: Генерала Дорохова пр-кт, 39к1Д, 5
Метро:
Минская
14 мин. пешком (Рядом: Ломоносовский проспект)

Заинтересовал объект но остались вопросы? Заполните форму и наш специалист с вами свяжется.

Коттедж Коттедж 3 Коттедж 2
Похожие квартиры