4-комн. квартира, 169.1 м2, 3 этаж

ОПИСАНИЕ КВАРТИРЫ - 3 ЭТАЖ, 169.1 КВ.М.

Выполнен ремонт.

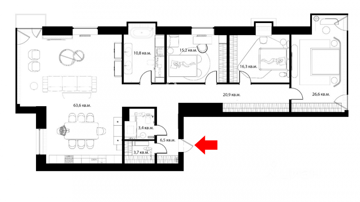
Планировочное решение: кухня-гостиная с обеденной зоной, 3 спальни, 2 с/у ( основной с естественным светом с ванной, гостевой с душем), 2 гардеробные комнаты.

В квартире семь окон

Вид в сторону парка Победы и придомовой парковой территории.

 

 

УСЛОВИЯ ПРОДАЖИ

- быстрый выход на сделку;

- свободная продажа;

- возможна ипотека;

 

О КОМПЛЕКСЕ

Snegiri Eco – это 15 зданий малой этажности в районе Кутузовского проспекта, рядом с Парком Победы и природным заказником «Долина реки Сетунь». 

Общая концепция построек – экологическая безопасность. На территории создана уникальная ландшафтная среда с великолепным разнообразием растений, цветочных композиций и скульптур.

Собственная инфраструктура: детский сад, игровые площадки, фитнес клуб, ресторан, супермаркет, салон красоты, аптека, химчистка-прачечная, стоматология, все это позволит жителям получать максимальный спектр услуг, не выезжая за пределы комплекса.

Лот №492037
4-комн. квартира, 169.1 м2, 3 этаж
ЖК: Снегири Эко
Адрес: Минская улица, 2Вк3
Описание объекта
Площадь
169.1 м²
Этаж/этажность
3 / 6
Комнат
4
Санузлов
2
Отделка
евроремонт
Высота потолка
3.5
Дополнительно


Обновлен: 12.11.2025
Получить презентацию

Стоимость объекта 390 000 000 ₽

Стоимость за м2 2 306 328 ₽

Все предложения ЖК
Расположение квартиры

Адрес: Минская улица, 2Вк3

Заинтересовал объект но остались вопросы? Заполните форму и наш специалист с вами свяжется.

Коттедж Коттедж 3 Коттедж 2
Похожие квартиры
Снегири Эко
№ лота 492025
335 000 000 ₽
2 102 950 ₽/м2
159.3 м2
3-комн. квартира, 159.3 м2, 8 этаж
Минская улица, 2Вк1
Парк Победы10 мин.

3-комн.

8 / 7

3.5 м.

Подробнее
Снегири Эко
№ лота 492026
470 870 000 ₽
2 852 029 ₽/м2
165.1 м2
3-комн. квартира, 165.1 м2, 2 этаж
Минская улица, 2, корпус 1-12
Парк Победы10 мин.

3-комн.

2 / 7

3.5 м.

Подробнее
Снегири Эко
№ лота 492005
447 538 200 ₽
2 222 136 ₽/м2
201.4 м2
4-комн. квартира, 201.4 м2, 2 этаж
Минская улица, 2Вк6

4-комн.

2 / 7

3.5 м.

Подробнее
Снегири Эко
№ лота 492033
317 180 000 ₽
1 557 094 ₽/м2
203.7 м2
5-комн. квартира, 203.7 м2, 2 этаж
Минская улица, 2Вк3

5-комн.

2 / 7

3.35 м.

Подробнее
Снегири Эко
№ лота 492038
270 000 000 ₽
1 308 774 ₽/м2
206.3 м2
4-комн. квартира, 206.3 м2, 3 этаж
Минская улица, 2Вк3

4-комн.

3 / 7

3.35 м.

Подробнее
Снегири Эко
№ лота 492044
256 550 000 ₽
1 243 577 ₽/м2
206.3 м2
4-комн. квартира, 206.3 м2, 4 этаж
Минская улица, 2Вк3

4-комн.

4 / 7

3.35 м.

Подробнее
Снегири Эко
№ лота 492040
310 720 000 ₽
1 505 426 ₽/м2
206.4 м2
4-комн. квартира, 206.4 м2, 5 этаж
Минская улица, 2Вк3

4-комн.

5 / 7

3.4 м.

Подробнее
Снегири Эко
№ лота 492029
500 000 000 ₽
2 395 783 ₽/м2
208.7 м2
3-комн. квартира, 208.7 м2, 4 этаж
Минская улица, 2Вк6

3-комн.

4 / 7

3.5 м.

Подробнее
Снегири Эко
№ лота 492036
480 000 000 ₽
2 293 359 ₽/м2
209.3 м2
4-комн. квартира, 209.3 м2, 3 этаж
Минская улица, 2Вк6

4-комн.

3 / 7

3.5 м.

Подробнее
Хилков, 5
№ лота 441006
289 000 000 ₽
1 822 194 ₽/м2
158.6 м2
2-комн. квартира, 158.6 м2, 3 этаж
Хилков переулок, 5
Парк культуры6 мин.

2-комн.

3 / 5

Подробнее
Золотой
№ лота 777077
257 000 000 ₽
1 572 827 ₽/м2
163.4 м2
3-комн. квартира, 163.4 м2, 3 этаж
Софийская набережная, 18
Боровицкая12 мин.

3-комн.

3 / 5

3.35 м.

Подробнее
Звонарский DELUXE
№ лота 482009
360 000 000 ₽
2 111 437 ₽/м2
170.5 м2
4-комн. квартира, 170.5 м2, 6 этаж
Звонарский перулок, 3/4c1
Трубная5 мин.

4-комн.

6 / 10

Подробнее
Сытинский
№ лота 499001
400 000 000 ₽
2 011 061 ₽/м2
198.9 м2
3-комн. квартира, 198.9 м2, 2 этаж
Богословский переулок, 12А

3-комн.

2 / 8

3.23 м.

Подробнее
ЖК рядом
Золотые Ключи-2
Форт Кутузов
Кутузовская Ривьера
Доминион
Шуваловский
Чемпион Парк
Дом на Мосфильмовской
Воробьевы горы
Мосфильмовский
NEVA Towers