4-комн. квартира, 150 м2, 1 этаж

ОПИСАНИЕ КВАРТИРЫ - 1 ЭТАЖ,  150 КВ.М. 

Полная цена в ДКП

Квартира с  отделкой от застройщика  в стиле нео-классика.

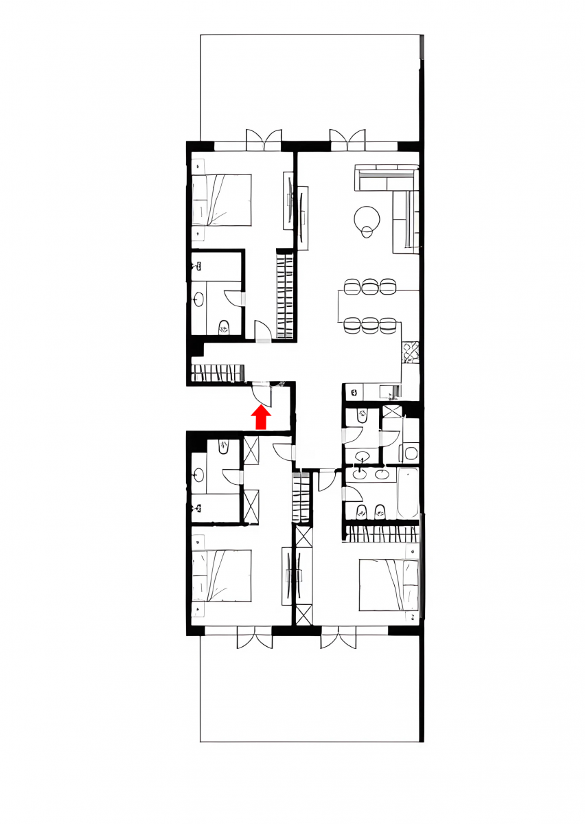
Планировочное решение: кухня с обеденной зоной и гостиной, три спальни со своими санузлами и зонами хранения, гостевой санузел  с постирочной, прихожая. 

В квартире четыре панорамных, немецких окна Schuco. Две террасы. 

Вид во внутренний двор ЖК. 

Высота потолков 3,50 метров.

 

УСЛОВИЯ ПРОДАЖИ 

- свободная продажа

- возможна ипотека

- быстрый выход на сделку

 

О КОМПЛЕКСЕ 

Элитный жилой комплекс в Парке Победы.

Территория Victory Park Residences плавно переходит в Парк Победы. Его широкие аллеи созданы для семейных прогулок и занятий спортом. Вдохните полной грудью и ощутите простор для новых свершений, который дарит Москва.

Получите возможность ощутить совершенно новый уровень жизни. Здесь ваш дом не ограничивается одним из корпусов, но простирается на всю территорию комплекса, включающую приватный сад VICTORY GARDEN, игровые площадки и зоны отдыха.

Богатая инфраструктура VICTORY GALLERY удовлетворит самые разные запросы резидентов, при этом продуманное расположение удачно отделяет торговые пространства от жилых. Все сервисы и магазины, частично размещённые ниже уровня земли, доступны даже без выхода из здания — к ним легко и быстро можно спуститься на лифте.

Подземный паркинг расположен на −2 уровне комплекса. В подземном паркинге доступен премиальный детейлинг-центр. Для резидентов есть доступ с любого жилого этажа каждого корпуса.

Лот №502181
4-комн. квартира, 150 м2, 1 этаж
ЖК: Victory Park Residences (Виктори Парк Резиденсез)
Адрес: Братьев Фонченко улица, 1, к7
Описание объекта
Площадь
150 м²
Этаж/этажность
1 / 10
Комнат
4
Санузлов
4
Отделка
евроремонт
Высота потолка
3.5
Дополнительно


Обновлен: 10.04.2026
Получить презентацию

Стоимость объекта 270 000 000 ₽

Стоимость за м2 1 800 000 ₽

Все предложения ЖК
Расположение квартиры

Адрес: Братьев Фонченко улица, 1, к7

Заинтересовал объект но остались вопросы? Заполните форму и наш специалист с вами свяжется.

Коттедж Коттедж 3 Коттедж 2
Похожие квартиры
ЖК рядом
Золотые Ключи-2
Кутузовская Ривьера
Доминион
Шуваловский
Дом на Мосфильмовской
Воробьевы горы
Мосфильмовский
Снегири Эко
Лужники Хаус
RedSide